전국 건축사 사무소 지도 정보
공공데이터포털 '전국건축사사무소표준데이터', 카카오 '로그인, 지도, 블로그, 검색(이미지)', 네이버 '블로그, 검색(이미지)', Google 로그인 이용하여 개발되었습니다
버전 : 4 / 2024-12-12 03:00:41
짧은 한 줄 후기 “도면 선 명확도 하나만으로도 렌탈하길 잘했다는 생각이 들어요.” (경남 창원 건축사사무소 소장님) “조감도 컬러 표현이 좋아서 프레젠테이션 때 자신감이 생겼습니다.” (창원...
프린터렌탈 복합기렌탈 전문업체 카피몬(20251202)
창원에서 CCTV 실시간 관제센터 설치가 필요한 이유 창원 시공사나 건설사, 건축사 사무소에서는... 창원 시공사 건설사 사무소의 CCTV 설치 후기 창원의 여러 시공사와 건설사 사무소들은 CCTV 설치 후 긍정적인...
미미(20260201)
창원건축사 없이 설계한 내 건물 1년 뒤에는? 창원건축을 계획하는 여러분 반갑습니다. 혹시 위와 같은... <건축설계/감리 직접 써주신 건축주자필후기> 건축사사무소 지음 사무실 : 051-791-0201 대표전화 : 010-7309...
가치를 아는 사람들(20250327)
세마루건축사 사무소입니다. 상세한 느낌은 동영상을 통해 봐주세요! #진주혁신도시커튼... 데코인홈 창원본점 주소 : 창원시 의창구 봉곡로 120번길 1, 1층 데코인홈 영업시간 : 10:00-19:00 (연중무휴) 주차장...
데코인홈 경남 커튼 블라인드(20260311)
ㅎㅎ 진주 커튼 블라인드 데코인홈 진주 혁신 세마루건축사사무소 시공 후기 입니다. 진주 커튼... 주차 ▶창원 커튼 블라인드, 데코인홈 주소 / 창원시 의창구 봉곡로120번길 1, 1층 데코인홈 영업시간 / 월...
데코인홈 커튼 / 블라인드 / 선반 전문 업체(20260226)
<건축사무소지음과 설계/시공감리 건축주님 자필후기> " " " " 건축사사무소 '지음' 대표번호 : 010-****-**** 건축사사무소 지음 : 네이버 지도(클릭) 대표번호를 클릭하시면 바로 전화로 이동합니다
가치를 아는 사람들(20220502)
있는 건축사사무소 지음 대표 이동희입니다. 저는 지금까지 210곳 이상의 건축설계를 진행하면서... 이에 건축사지음은 아래 고객님 자필 후기를 정리해두었으니, 읽어보시면 어떤 창원건축사를 방문하셔야 할지...
가치를 아는 사람들(20231028)
055.221.8333 E-mail. *******@hanmail.net Add. 경남 창원시 마산합포구 해안대로 2 702호 리아건축사사무소 도움이 되셨다면 댓글과 공감 부탁드려요! 궁금한 점은 언제든 문의 남겨주시면 답변드리겠습니다.
리아건축사사무소(20260309)
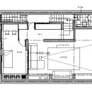
위 치 경상남도 창원시 마산합포구 중앙동1가 1-18번지 용 도 근린생활시설 → 노유자시설... 아르끼떽뚜라 건축사사무소는 용도변경/건축설계 및 감리를 전문으로하는 사무소입니다. 김해시...
테라본 건축사사무소(20191001)
안녕하세요 삼성건축사 사무소입니다 ^^ 이번 포스팅은 창원시 마산합포구 교방동에 위치한 2층주택 해체허가건입니다. 해체허가는 신고건보다 관할구청에 제출해야할 서류가 훨씬 많으며, 심의도 거쳐야하고...
삼성건축사사무소(20250406)
창원시 마산합포구 구산면 구복리 단독주택 신축공사 대지위치 : 창원시 마산합포구 구산면... 주요마감재 : 청고벽돌, 스타코 <모형_study> 설계 : (주)이지건축사사무소 _ 신명관, 노금주 <건축도면>
주식회사 이지건축사사무소(20191120)
대지위치 : 창원시 마산합포구 진동면 신기리 75-1번지 2. 지역,지구 : 제1종일반주거지역 3.... 마 감 : 외벽 - 스타코(백색계열) / 지붕 : 이중그림자 아스팔트 싱글 10. 설 계 : 마루 건축사사무소
마루건축사사무소(20170102)
25 ~ 2015.10.17 -기초작업 완료 -1층 벽체부 철근배근작업 진행중 <창원시 마산합포구 덕동동 단독주택 계획안> - 피앤이건축사사무소 - - 건축개요 - 1. 지역 및 지구 :제1종일반주거지역...
신개념 주거디자인 "피앤이건축사사무소" 1661-5650(20151013)
055.221.8333 E-mail. *******@hanmail.net Add. 경남 창원시 마산합포구 해안대로 2 702호 리아건축사사무소 도움이 되셨다면 댓글과 공감 부탁드려요! 궁금한 점은 언제든 문의 남겨주시면 답변드리겠습니다.
리아건축사사무소(20260313)
13 테라본 건축사사무소입니다 <창원시 마산합포구 용도변경 전문 건축사사무소> 창원시 마산합포구 창동 133-0번지 마산부림시장 인근에 위치한 건물 제1종근린생활시설(휴게음식점) →위락시설...
테라본 건축사사무소(20231212)
055.221.8333 E-mail. *******@hanmail.net Add. 경남 창원시 마산합포구 해안대로 2 702호 리아건축사사무소 도움이 되셨다면 댓글과 공감 부탁드려요! 궁금한 점은 언제든 문의 남겨주시면 답변드리겠습니다.
리아건축사사무소(20260312)
방문 후기를 정리해 봅니다. 바람이 어찌나 불던지. 저 넓은 분지에 산에서 불어오는 바람이 엄청... 선보이는 '이소우건축사사무소(eSou Architects)'의 설계로 완성되었습니다. 이소우건축은 마산합포구 월영동의...
사막을 건너는 고래의 꿈(20260405)
트리장식이 흔했던 12월의 어느날, 이소우건축사 사무소에서 지은 건물이라고 해서 외관도 궁금했는데, 세월의 흔적은 조금 있지만 여전히 멋지네요 내돈내산후기 끝
oldest but goodest(20240225)
(주)예원건축사사무소 / 경상남도 마산합포구 문신길 78, 601호(자산동, 블루캐슬) ☎ 055-248-0825 ▶ 더원건축사사무소 / 경상남도 창원시 마산합포구 장군천로 32, 4층(장군동3가) ☎ 055-221-3338...
공신력있는_정보팩트(20230126)
구매 고객님께서 작성해 주시는 구매후기를 보시면, '최고의 고객만족을 위해 최선을 다하는... 창원시 마산합포구 해안대로 307에 있습니다. #오토캐드PC #건축설계용PC #건축사사무소PC #인벤터PC...
폭스컴퓨터★창원컴퓨터★마산컴퓨터조립★라이젠스토(20240816)
멋진 바다와 아름다운 석양이 있는 마산의 한 카페 설계 프로젝트 후기였습니다. 오늘도 긴 글 함께 읽어주셔서 감사드립니다. ※ 소속 건축사로 재직할 당시에 진행하였던 프로젝트입니다. ※ 본 포스팅에...
최재훈 건축사(20250221)
등록된 리뷰가 없습니다.
첨부파일